Vente Maison Beynes
Vente Maison Beynes
Vente Maison Beynes
Vente Maison Beynes
Vente Maison Beynes
Vente Maison Beynes
Vente Maison Beynes
Vente Maison Beynes
Vente Maison Beynes
Vente Maison Beynes

Maison de 5/6 chambres située à Beynes
Beynes

495 000 €

Informations complémentaires

Maison de 5/6 chambres située à Beynes

495 000 €

Cette maison de 7 pièces implantée sur une parcelle d'approximativement 1400m² avec une vue imprenable sur la vallée se situe dans un quartier très recherché de Beynes. À la fois proche de toutes les commodités et dans un environnement préservé à proximité de la forêt.
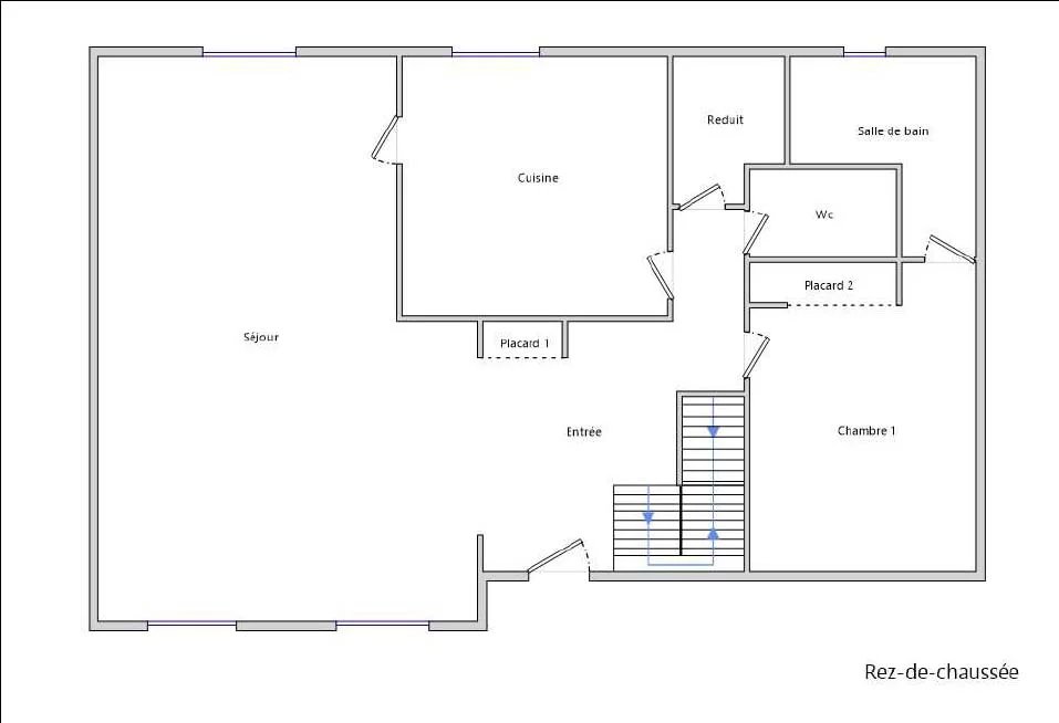
Au rez-de-chaussée une entrée vous accueille et dessert un grand séjour traversant donnant sur une terrasse de 30m², une cuisine, une chambre, une salle de bains et un WC.
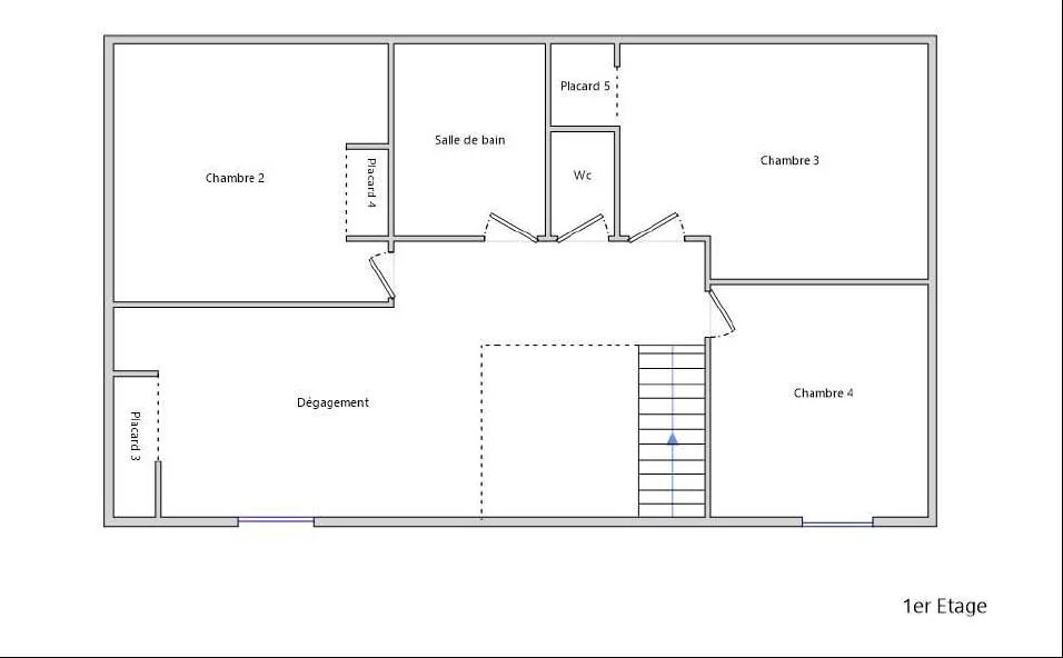
À l'étage un grand palier dessert trois chambres (une quatrième chambre peut être facilement créée), une salle de bains et des toilettes.
Un sous-sol total complète ce bien avec une sixième chambre équipée d'un vasistas.
Coup de cœur assuré pour ce bien et son environnement.
Contact : Laurent Léon (EI).
agent commercial enregistré au RSAC de Versailles 751 000 282.
Tel : 06 75 72 34 77
l.leon@agencecap.fr.

Autres visuels

Pas d'informations disponibles

Surfaces

  • 1 Séjour
  • 1 Entrée
  • 1 Cuisine
  • 1 Chambre
  • 1 Chambre
  • 1 Chambre
  • 1 Chambre
  • 1 Chambre
  • 1 Palier
  • 1 Salle de bains
  • 1 Salle de bains 4 m²
  • 1 Toilettes
  • 1 Toilettes
  • 1 Cellier
  • 1 Atelier
  • 1 Garage
  • 1 Buanderie
  • 1 Placard
  • 1 Placard
  • 1 Placard
  • 1 Placard
  • 1 Placard
  • 1 Terrain 1400 m²

Proximités

  • Bus 600 mètres
  • Centre ville 700 mètres
  • Cinéma 800 mètres
  • Commerces 700 mètres
  • École primaire 650 mètres
  • École secondaire 2500 mètres
  • Golf 4 kilomètres
  • Supermarché 700 mètres
  • Tennis 650 mètres
  • Hôpital/clinique 7 kilomètres
  • Médecin 700 mètres
  • Salle de sport 4 kilomètres

Prestations

  • Air conditionné
  • Cheminée
  • Double vitrage
  • Internet
  • Barbecue
  • Fibre optique

Mentions légales

  • Honoraires à la charge du vendeur
  • Taxe foncière 2561 € / an
  • Montant estimé des dépenses annuelles d'énergie pour un usage standard, établi à partir des prix de l'énergie de l'année 2021 : 2396€ ~ 3243€
  • Les informations sur les risques auxquels ce bien est exposé sont disponibles sur le site Géorisques : www.georisques.gouv.fr

Efficacité énergétique

Diagnostic Graph
Diagnostic Graph
  • Référence 811
  • Pièces 7 pièces
  • Surface 154 m²
  • Surface totale 168 m²
  • Type de chauffage Convecteur, Cheminée
  • Énergie de chauffage Electrique, Bois
  • Moyen de chauffage Individuel
  • Type d'eau chaude Chauffe-eau
  • Moyen d'eau chaude Individuelle
  • Eaux usées Tout à l'égout
  • État Bon état
  • Vue Panoramique Collines Campagne

Biens similaires

Demande d'informations supplémentaires

Ce site est protégé par reCAPTCHA et les règles de confidentialité et les conditions d'utilisation de Google s'appliquent.